22G101-2 图集CAD版本下载请点击下方链接:
22G101-1~3 图集三维PDF版本下载请点击下方链接:
22G101建筑高清完整版三维全彩平法结构图集

图1
这五种情况又可以归纳为三种不峰设土木网同的情况,分别是:中柱双面缩进;中柱单面缩进;边角柱单面缩进。
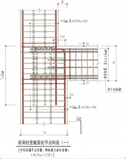
根据图集构造要求,纵向钢筋的构造可以总结为两种情况:△ /hb>1/6时,纵筋断开,△/hb≤1/6时,纵筋不用断开。(△/hb是柱子上下截面差和节点高的比值)。
节点1:△/hb>1/6且为双面缩进。构造做法如下:
下部钢筋伸至梁顶部,弯折12d,且伸入长度≥0.5labE,上部钢筋下插入下部柱内,下插长度≥1.2labE。


节点2:△/hb≤1/6且为双面缩进。构造做法如下:
因为截面差值小,钢筋不用断开,按1:6将钢筋弯折,伸入上部柱,按照常规柱纵向钢筋构造做法进行连接。


节点3:△/hb>1/6且为双面缩进。构造做法如下:
未变截面侧钢筋直接伸入上部柱。变截面侧钢筋按照下部钢筋伸至梁顶部,弯折12d,且伸入长度≥0.5labE,上部钢筋下插入下部柱内,下插长度≥1.2labE。


节点4:△/hb≤1/6且为单面缩进。构造做法如下:
未变截面侧钢筋直接伸入上部柱,变截面侧钢筋1:6将钢筋弯折,伸入上部柱,按照常规柱纵向钢筋构造做法进行连接。

节点5:此△/hb>1/6且峰设土木网为边角柱单面缩进。
此种做法是下部钢筋伸至梁顶部,向内弯折,从柱外边计算弯折长度1.2labE。

文章来源于公众号文章,欢迎点击关注:22G101图集笔记:框架柱变截面纵向钢筋变化的几种情形
各类钢材的重量计算公式1、螺纹钢重量计算公式公式:直径mm直径mm0.00617长度m例:螺纹钢20mm(直径)12m(长度)计算:20200.0061712=29.616kg2、钢管重量计算公式公式:(外径-壁厚)壁厚mm0.02466长度m例:钢管114m…
